Großes Potenzial in Top-Lage: Sanierungsbedürftiges Haus auf traumhaftem Grundstück in Dangast

26316 Varel / Dangast, Einfamilienhaus zum Kauf

Berechnen Sie jetzt Ihre Finanzierung und erhalten Sie eine erste Einschätzung Ihrer monatlichen Rate.

Kontakt

Nicolas Spetgens,

Direktanfrage

* Pflichtangaben
 SSL-verschlüsselt

Großes Potenzial in Top-Lage: Sanierungsbedürftiges Haus auf traumhaftem Grundstück in Dangast

26316 Varel / Dangast, Einfamilienhaus zum Kauf

289.000 EUR

Objektdaten

  • Objekt ID
    3593-26
  • Objekttypen
    Einfamilienhaus, Ferienimmobilie, Haus
  • Adresse
    26316 Varel / Dangast
  • Wohnfläche ca.
    70 m²
  • Nutzfläche ca.
    65 m²
  • Gesamtfläche ca.
    135 m²
  • Grund­stück ca.
    746 m²
  • Zimmer
    2
  • Terrassen
    1
  • Baujahr
    1974
  • Zustand
    renovierungsbedürftig
  • Bauweise
    Fertigteile
  • Verfügbar ab
    sofort
  • Käufer­provision
    3% zzgl. MwSt.
  • Kaufpreis
    289.000 EUR

Überblick

Dieses Okal-Fertighaus befindet sich in sanierungsbedürftigem Zustand und bietet Käufern die Möglichkeit, ein Objekt in attraktiver Lage nach eigenen Vorstellungen zu entwickeln. Besonders hervorzuheben ist das großzügige Grundstück mit vielseitig nutzbaren Außenbereichen.

Der hintere Garten bildet dabei das Herzstück: Hier erwarten Sie eine Terrasse, ein Gartenhaus sowie ein Teich – ein ruhiger, grüner Bereich mit viel Platz für Erholung, Freizeit und individuelle Gestaltungsideen.

Der ebenfalls großzügige Vorgarten steht dem in nichts nach. Er ist nahezu ebenso groß und durch eine Hecke zur Straße hin abgeschirmt, wodurch ein geschützter, privater Bereich mit eigenem Gartenhaus entsteht.

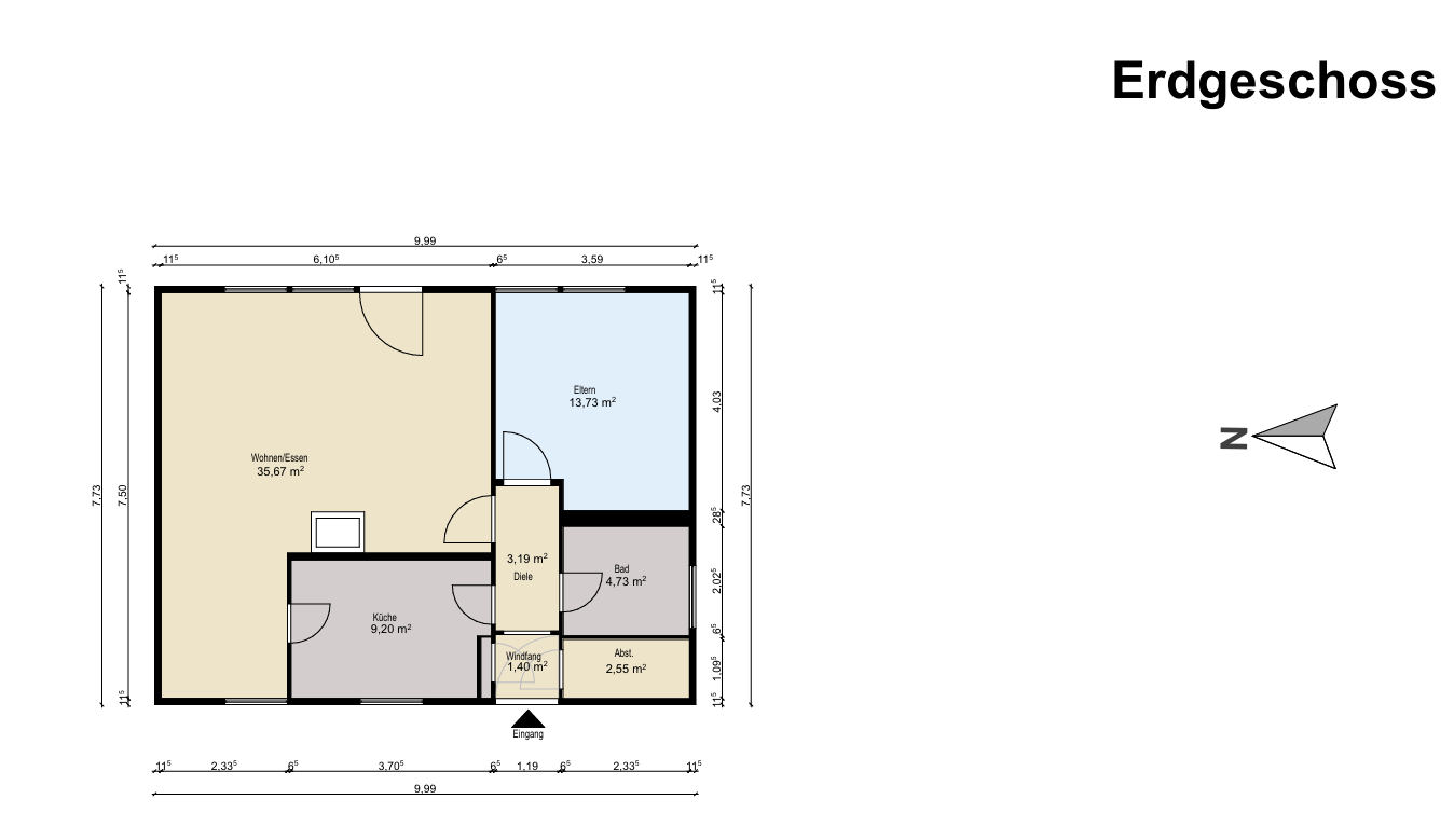
Im Erdgeschoss verfügt das Haus über zwei Zimmer, eine Küche, einen Abstellraum sowie ein Tageslichtbad mit Dusche. Rollläden an allen Fenstern sind vorhanden.

Das Gebäude ist voll unterkellert und bietet zusätzliche Flächen mit vielseitiger Nutzung: zwei weitere Zimmer, ein Badezimmer, eine Küche sowie eine Bar eignen sich ideal für Gäste, Hobby oder Homeoffice.

Das Dachgeschoss ist ausbaufähig und bietet weiteres Potenzial zur Erweiterung der Wohnfläche.

Eine Garage ergänzt das Angebot.

Die Immobilie ist umfassend sanierungsbedürftig, bietet jedoch insbesondere durch das große Grundstück und die gefragte Lage eine seltene Gelegenheit zur individuellen Entwicklung und nachhaltigen Wertsteigerung.

Sonstige Informationen

Energieausweis wird noch erstellt.

Weitere Bilder innen und außen stellen wir gern im Exposé zur Verfügung.

Ausstattung / Merkmale

  • Als Ferienimmobilie geeignet
  • Außenstellplatz
  • Einbauküche
  • Fertigbauweise
  • Garage
  • Keller
  • Terrasse
  • Wintergarten

Lage

Die Immobilie befindet sich in der Straße Hollwert im beliebten Nordseebad Dangast, einem Stadtteil der Stadt Varel. Die Lage ist geprägt von einer ruhigen Wohnumgebung und der Nähe zur Nordsee.

Dangast überzeugt durch seinen besonderen Charme, den Strand sowie zahlreiche Freizeit- und Erholungsmöglichkeiten. Einkaufsmöglichkeiten, Gastronomie und Einrichtungen des täglichen Bedarfs sind in der Umgebung vorhanden.

Die Städte Varel, Oldenburg und Wilhelmshaven sind in kurzer Zeit erreichbar und bieten eine gute Anbindung sowie weitere infrastrukturelle Angebote.

Die Kombination aus ruhigem Wohnen, maritimem Umfeld und attraktiver Lage macht diesen Standort besonders interessant – sowohl zur Eigennutzung als auch als Investition.

Kindergarten 3,94 km | Grundschule 4,76 km | Autobahn 5,33 km | Zentrum 500 m | Bus 210 m | Einkaufsmöglichkeiten 500 m | Gaststätten 200 m 

Die dargestellte Position der Immobilie ist nur eine ungefähre Angabe.

Immobiliendaten-Import und Darstellung für WordPress: WP-ImmoMakler®